最后更新:2022-03-08 08:08:03 手机定位技术交流文章
plc三菱以亮三秒,熄两秒的指示灯闪烁如何编梯形图?,三菱plc四层电梯程序,三菱fx系列plc和北京天辰仪表无协议通讯程序,本人实际应用,和大家一,设计6个灯组成的彩灯组三菱plc控制程序,启动后,相邻两个灯两两同时亮,三菱plc四层电梯程序,小编整理了三菱plc闪烁程序(三菱plc闪烁程序梯形图),欢迎阅读收藏。

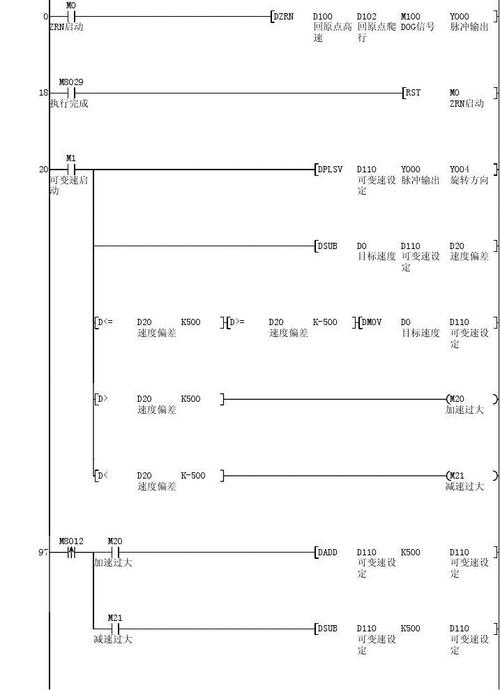
三菱plc程序fx1nmt控制mr-e伺服实例

plc三菱以亮三秒,熄两秒的指示灯闪烁如何编梯形图?

如何理解三菱plc通信程序指令意思?

三菱plc四层电梯程序
本文主题内容是:三菱plc闪烁程序(三菱plc闪烁程序梯形图)

三菱plc跑马灯程序解决方案华强电子网

三菱fx系列plc和北京天辰仪表无协议通讯程序,本人实际应用,和大家一

三菱plc驱动

设计6个灯组成的彩灯组三菱plc控制程序,启动后,相邻两个灯两两同时亮
本文由 在线网速测试 整理编辑,转载请注明出处。